Sold

Nearing Completion With Lots Of Extras

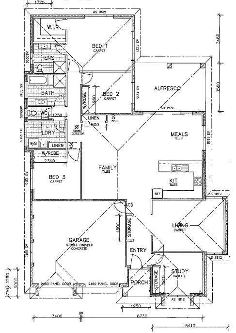
Fabulous new design all level 4 bedroom residence. Ideal for retirees with side access and extra wide double garage of approx. 43.2m2. Total dwelling size of approx 246m2. Designed with comfortable living in mind and a flare for entertaining. The 53m2 open plan family living area flows via double glass doors to 18m2 alfresco entertaining area under roof line. Main bedroom suite including walk-in wardrobe and ensuite is position at the back providing quiet outlook over the gardens, while the three minor bedrooms all have built-in wardrobes. The 4th bedroom is neatly positioned at the front of the home off the entry foyer making it an ideal study/office or multipurpose room. The separate lounge or media room can be smartly closed off by the double doors Great inclusions like solar hot water, ducted vacuum system, ceiling fans, dishwasher, range hood, gas cook top with electric wall oven etc. all make this a very chic residence with nothing to do but move in and enjoy. Completion due end of May so still time to choose your own colours. Council rates: $1750pa.
4 2 2 567 m2
Address 46 Braeroy Drive, Port Macquarie
Price SOLD
Property Type Residential
Property ID 1277
Category House
Land Area 567 m2
Floor Area 241.54 m2

Agent Details